Urządzenie sypialni to coś więcej niż tylko wstawienie łóżka i szafy. To proces tworzenia osobistej oazy spokoju, miejsca, gdzie komfort i estetyka idą w parze. W tym artykule podzielę się z Wami praktycznymi poradami i inspiracjami, które pomogą Wam krok po kroku zaaranżować funkcjonalną i piękną sypialnię, idealnie dopasowaną do Waszych potrzeb.
Stwórz swoją oazę spokoju: kluczowe zasady aranżacji i wyboru mebli do sypialni
- Wybierz wygodne łóżko dopasowane do metrażu i potrzeb, pamiętając o odpowiedniej wysokości materaca (min. 40-45 cm).
- Zainwestuj w pojemną szafę (np. przesuwną z lustrem do małych sypialni) i funkcjonalną komodę, aby utrzymać porządek.
- Stosuj jasne, stonowane kolory (beże, szarości, zielenie) i naturalne materiały (drewno, len) dla stworzenia relaksującej atmosfery.
- Zaplanuj zróżnicowane oświetlenie: główne, nocne i dekoracyjne, aby budować nastrój i funkcjonalność.
- W małych sypialniach wykorzystaj triki optyczne (lustra, jasne barwy) i meble wielofunkcyjne, unikając zagracenia.
- Unikaj najczęstszych błędów, takich jak zbyt duże meble czy niewłaściwa kolorystyka, aby stworzyć spójne wnętrze.

Zacznij od planu: klucz do funkcjonalnej sypialni
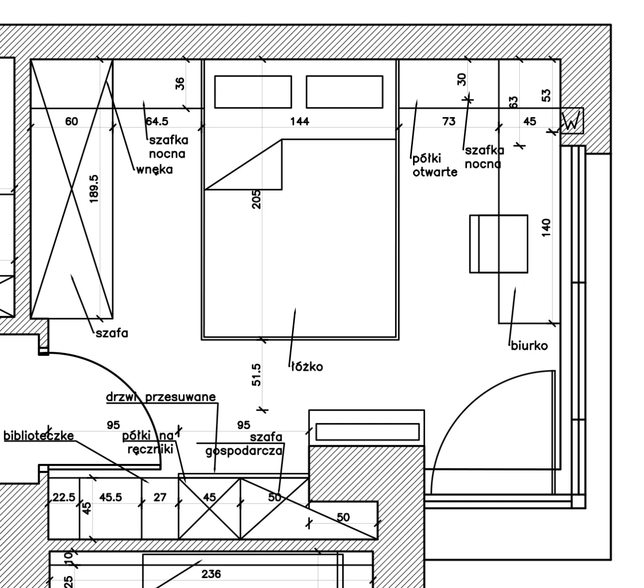
Zanim wpadniecie w wir zakupów i wybierania kolorów, zatrzymajcie się na chwilę i poświęćcie czas na dobry plan. To absolutna podstawa, która pozwoli Wam stworzyć nie tylko piękną, ale przede wszystkim funkcjonalną i ergonomiczną przestrzeń. Bez przemyślanego rozkładu mebli łatwo o błędy, które później trudno skorygować.
Zmierz, narysuj, zaplanuj: proste kroki do idealnej przestrzeni
Planowanie sypialni to proces, który wymaga precyzji, ale jednocześnie daje mnóstwo satysfakcji. Z mojego doświadczenia wiem, że te proste kroki pomogą Wam uniknąć wielu frustracji:
- Dokładne pomiary: Zmierzcie nie tylko długość i szerokość pokoju, ale także wysokość ścian, rozstaw okien, drzwi, grzejników i gniazdek elektrycznych. Każdy centymetr ma znaczenie, zwłaszcza w mniejszych pomieszczeniach.
- Wizualizacja układu mebli: Na kartce papieru w kratkę lub w prostym programie do projektowania narysujcie rzut sypialni w skali. Następnie wycinajcie z papieru kształty mebli (łóżka, szafy, komody, szafek nocnych) w tej samej skali i układajcie je na planie. To pozwoli Wam zobaczyć, jak przestrzeń będzie wyglądać i czy wszystkie elementy się zmieszczą.
- Uwzględnienie swobodnego dostępu: Pamiętajcie o pozostawieniu odpowiedniej ilości miejsca na swobodne poruszanie się. Przy łóżku dwuosobowym idealnie jest mieć co najmniej 60-70 cm wolnej przestrzeni po obu stronach. Drzwi szafy powinny otwierać się bez problemu, a szuflady komody wysuwać się całkowicie.
- Ergonomia i funkcjonalność: Zastanówcie się, jak będziecie korzystać z sypialni. Czy potrzebujecie miejsca do czytania? A może małego kącika do pracy? Upewnijcie się, że wszystkie kluczowe elementy, takie jak włączniki światła czy gniazdka, są łatwo dostępne z łóżka.

Serce sypialni: jak wybrać idealne łóżko?
Łóżko to bez wątpienia najważniejszy mebel w sypialni. To ono decyduje o jakości naszego snu i ostatecznie o naszym samopoczuciu. Wybór idealnego modelu to inwestycja w Wasz komfort i zdrowie, dlatego warto poświęcić mu szczególną uwagę.
Rozmiar ma znaczenie: kiedy 140x200, a kiedy 180x200?
Wybór odpowiedniego rozmiaru łóżka jest kluczowy i zależy od kilku czynników: metrażu sypialni oraz liczby i potrzeb użytkowników. Dla singla lub w bardzo małej sypialni łóżko o wymiarach 140x200 cm (tzw. łóżko podwójne) może być wystarczające. Jeśli jednak sypialnia jest przeznaczona dla dwóch osób i dysponujecie większą przestrzenią, zdecydowanie polecam łóżko o wymiarach 160x200 cm lub nawet 180x200 cm. Większa powierzchnia spania to większy komfort i swoboda ruchów. Pamiętajcie też o wysokości materaca dla optymalnego komfortu użytkowania powinien on znajdować się na wysokości minimum 40-45 cm od podłogi.
Łóżko z pojemnikiem czy na nóżkach? Praktyczne aspekty wyboru
Decyzja między łóżkiem z pojemnikiem a tym na nóżkach zależy od Waszych potrzeb w zakresie przechowywania i estetyki:
- Łóżko z pojemnikiem na pościel: To idealne rozwiązanie do małych sypialni, gdzie każdy centymetr przestrzeni jest na wagę złota. Pojemnik pod materacem oferuje dodatkowe, często bardzo obszerne miejsce do przechowywania pościeli, koców, a nawet ubrań sezonowych. To świetny sposób na utrzymanie porządku i zminimalizowanie ilości innych mebli. Wadą może być nieco większa waga i czasem utrudniony dostęp do przestrzeni pod łóżkiem.
- Łóżko na nóżkach: Daje wrażenie lekkości i przestronności, co jest korzystne w mniejszych wnętrzach, jeśli nie potrzebujecie dodatkowego miejsca do przechowywania. Łatwiej jest pod nim sprzątać, a przestrzeń pod łóżkiem można wykorzystać na ozdobne kosze lub po prostu pozostawić pustą, co optycznie powiększa pomieszczenie.
Zagłówek, który odmieni wnętrze: tapicerowany, drewniany czy minimalistyczny?
Zagłówek to nie tylko praktyczny element, który chroni ścianę i zapewnia oparcie podczas czytania, ale także ważny element dekoracyjny. Tapicerowane, wysokie zagłówki cieszą się obecnie dużą popularnością. Dodają sypialni elegancji, przytulności i luksusowego charakteru, a do tego są bardzo wygodne. Możecie wybrać model z tkaniny welurowej, lnu czy bawełny, dopasowując go do reszty wystroju. Drewniane zagłówki wprowadzają do wnętrza naturalność i ciepło, idealnie pasując do stylów skandynawskiego czy rustykalnego. Z kolei minimalistyczne zagłówki, często w formie prostych paneli lub listew, sprawdzą się w nowoczesnych aranżacjach, gdzie liczy się prostota formy i funkcjonalność.
Przechowywanie pod kontrolą: wybór szafy i komody
Utrzymanie porządku w sypialni to klucz do stworzenia harmonijnego i relaksującego wnętrza. Odpowiednio dobrane meble do przechowywania są w tym procesie nieocenione. Dobrze zaplanowana szafa i komoda pomogą Wam zapanować nad chaosem i sprawią, że sypialnia będzie zawsze wyglądać schludnie.
Szafa przesuwna czy tradycyjna? Rozwiązania do małych i dużych wnętrz
Wybór między szafą przesuwną a tradycyjną z drzwiami otwieranymi zależy przede wszystkim od dostępnej przestrzeni. W małych sypialniach, zwłaszcza tych w blokach, szafy z drzwiami przesuwnymi są zdecydowanie lepszym rozwiązaniem. Ich drzwi nie zajmują dodatkowej przestrzeni podczas otwierania, co pozwala na maksymalne wykorzystanie każdego centymetra. Szafy tradycyjne, choć oferują pełny dostęp do wnętrza, wymagają wolnego miejsca przed frontem, co może być problematyczne w ciasnych pomieszczeniach. W dużych sypialniach obie opcje są do rozważenia, ale i tak często polecam przesuwne ze względu na ich estetykę i nowoczesny wygląd.
Jak lustro na froncie szafy może odmienić Twoją sypialnię?
Lustrzane fronty szafy to prawdziwy game changer, szczególnie w mniejszych sypialniach. Po pierwsze, optycznie powiększają przestrzeń, sprawiając, że pokój wydaje się jaśniejszy i bardziej przestronny. Po drugie, odbijają światło, co dodatkowo rozjaśnia wnętrze. Po trzecie, eliminują potrzebę wieszania osobnego lustra, co jest kolejnym sposobem na oszczędność miejsca. To praktyczne i estetyczne rozwiązanie, które dodaje sypialni elegancji i funkcjonalności.
Komoda: niedoceniany mebel, który tworzy porządek i styl
Komoda to często niedoceniany, a niezwykle funkcjonalny mebel, który doskonale uzupełnia szafę. Jest idealna do przechowywania bielizny, T-shirtów, akcesoriów czy drobiazgów, które nie wymagają wieszania. Poza swoją praktyczną rolą, komoda może być także ważnym elementem dekoracyjnym. Na jej blacie można postawić lampkę nocną, świece, ramki ze zdjęciami czy ulubione książki, tworząc przytulny kącik i dodając sypialni charakteru.
Niezbędni pomocnicy: szafki nocne i dodatkowe meble
Oprócz łóżka, szafy i komody, w sypialni często potrzebujemy mniejszych mebli i dodatków, które zwiększają jej funkcjonalność i komfort. To właśnie one sprawiają, że przestrzeń staje się bardziej osobista i dopasowana do naszych codziennych rytuałów.
Co postawić przy łóżku? Funkcjonalne alternatywy dla klasycznej szafki nocnej
Klasyczna szafka nocna to oczywiście dobry wybór, ale nie jedyny! Czasem warto poszukać bardziej kreatywnych i funkcjonalnych alternatyw, które mogą lepiej wpisać się w styl i potrzeby Waszej sypialni:
- Półki ścienne: Jeśli macie bardzo mało miejsca, proste półki zamontowane nad łóżkiem lub obok niego mogą pełnić rolę szafek nocnych, nie zajmując miejsca na podłodze.
- Małe stoliki kawowe lub pomocnicze: Mogą być stylową i lekką alternatywą dla tradycyjnych szafek. Wybierzcie modele z metalu, drewna lub szkła, które dodadzą wnętrzu lekkości.
- Wąskie regały: Regał z kilkoma półkami obok łóżka to świetne rozwiązanie dla miłośników książek, którzy chcą mieć swoje lektury zawsze pod ręką.
- Pufy z pojemnikiem: Łączą funkcję siedziska z miejscem do przechowywania, a na ich blacie można postawić lampkę lub szklankę wody.
- Wiszące lampy z półką: Niektóre nowoczesne lampy nocne są zintegrowane z małą półką, co jest bardzo sprytnym rozwiązaniem.
Toaletka, fotel, a może małe biurko? Kiedy warto wzbogacić sypialnię o dodatkowe funkcje
Sypialnia to przede wszystkim miejsce odpoczynku, ale w zależności od metrażu i Waszych potrzeb, może pełnić także inne funkcje. Jeśli macie wystarczająco dużo miejsca, warto rozważyć dodanie toaletki to idealne miejsce do codziennej pielęgnacji i makijażu, które dodaje sypialni kobiecego uroku. Wygodny fotel z małym stolikiem stworzy przytulny kącik do czytania lub relaksu. Natomiast w dobie pracy zdalnej, małe, dyskretne biurko może okazać się niezbędne, jeśli nie macie osobnego gabinetu. Ważne, aby te dodatkowe meble były proporcjonalne do wielkości sypialni i nie zagracały przestrzeni.
Gra kolorów i światła, czyli jak stworzyć idealny nastrój
Kolorystyka i oświetlenie to dwa kluczowe elementy, które w największym stopniu wpływają na atmosferę i komfort w sypialni. Dobrze dobrane barwy i światło potrafią stworzyć prawdziwą oazę spokoju, sprzyjającą relaksowi i regeneracji.
Paleta barw sprzyjająca relaksowi: modne i ponadczasowe kolory ścian
W sypialni stawiamy na kolory, które wyciszają i sprzyjają relaksowi. Zdecydowanie polecam barwy stonowane, neutralne i chłodne. Klasyczna biel, delikatne beże i szarości to ponadczasowe wybory, które zawsze się sprawdzą. Obecnie bardzo modne są także kolory ziemi: szałwiowa i oliwkowa zieleń, ciepłe brązy oraz odcienie piaskowe. Wprowadzają one do wnętrza spokój i harmonię, nawiązując do natury. Unikajcie zbyt intensywnych, pobudzających kolorów na wszystkich ścianach jeśli macie ochotę na mocniejszy akcent, zastosujcie go na jednej ścianie lub w dodatkach, takich jak poduszki czy narzuta. Pamiętajcie też o naturalnych materiałach (drewno, len), które doskonale komponują się z tą paletą barw.
Jedna lampa to za mało: planowanie oświetlenia w sypialni (główne, boczne, dekoracyjne)
W sypialni jedna lampa sufitowa to zdecydowanie za mało! Aby stworzyć funkcjonalne i nastrojowe wnętrze, potrzebujemy zróżnicowanego oświetlenia:
- Oświetlenie główne: Plafon lub żyrandol na suficie, który zapewni ogólne rozproszenie światła w całym pomieszczeniu. Powinno być ono regulowane (ściemniacz), aby można było dostosować jego intensywność do potrzeb.
- Oświetlenie boczne/nocne: Lampki nocne na szafkach lub kinkiety ścienne obok łóżka. Są niezbędne do czytania i zapewniają delikatne światło, które nie razi w oczy po zmroku.
- Oświetlenie dekoracyjne: To ono buduje nastrój! Mogą to być taśmy LED ukryte za zagłówkiem, wnękami, pod półkami, małe lampki stołowe na komodzie, girlandy świetlne czy świece. Ich zadaniem jest tworzenie ciepłej, intymnej atmosfery.
Rola tekstyliów: jak zasłony, dywan i narzuta budują przytulność?
Tekstylia to prawdziwi mistrzowie w budowaniu przytulności i estetyki sypialni. Miękkie zasłony, przyjemny w dotyku dywan i elegancka narzuta na łóżko potrafią całkowicie odmienić wnętrze. Zasłony nie tylko chronią przed światłem i zapewniają prywatność, ale także dodają pokojowi miękkości i elegancji. Wybierajcie te z naturalnych materiałów, takich jak len czy bawełna. Dywan pod stopami to synonim komfortu i ciepła, a także element, który wygłusza pomieszczenie. Narzuta na łóżko, dopasowana do kolorystyki wnętrza, spaja całą aranżację i sprawia, że sypialnia wygląda schludnie i zapraszająco. Pamiętajcie o wykorzystaniu naturalnych materiałów len, bawełna, a nawet juta w dodatkach, wprowadzą do sypialni spokój i harmonię.

Urządzanie trudnej przestrzeni: mała sypialnia w bloku
Mała sypialnia, zwłaszcza w bloku, to wyzwanie, z którym mierzy się wielu z nas. Ograniczony metraż wymaga sprytnych rozwiązań, kreatywności i przede wszystkim dobrego planowania. Moim celem jest pokazanie Wam, że nawet niewielka przestrzeń może być funkcjonalna, estetyczna i komfortowa.
Triki optyczne, które powiększą Twoje wnętrze
W małej sypialni liczy się każdy detal, który pozwoli wizualnie powiększyć przestrzeń. Oto kilka moich ulubionych trików optycznych:
- Jasne kolory: Biel, beże, jasne szarości i pastele na ścianach to absolutna podstawa. Odbijają światło, sprawiając, że pokój wydaje się większy i jaśniejszy.
- Lustra: To najlepsi sprzymierzeńcy w małych wnętrzach. Duże lustro na ścianie, lustrzane fronty szafy czy nawet kilka mniejszych luster strategicznie rozmieszczonych potrafią zdziałać cuda, optycznie podwajając przestrzeń.
- Pionowe i poziome pasy: Tapeta w delikatne pionowe pasy optycznie podwyższy pomieszczenie, natomiast poziome pasy mogą je poszerzyć.
- Minimalizm: Unikajcie zagracania przestrzeni. Im mniej przedmiotów na widoku, tym bardziej przestronne wydaje się wnętrze.
- Otwarta przestrzeń pod meblami: Łóżko na nóżkach, wiszące szafki nocne to wszystko sprawia, że podłoga jest bardziej widoczna, co daje wrażenie większej przestrzeni.
Meble wielofunkcyjne: Twój sprzymierzeniec w walce o każdy centymetr
W małej sypialni meble wielofunkcyjne to absolutny must-have. Są one kluczem do maksymalnego wykorzystania dostępnej przestrzeni. Łóżko z pojemnikiem na pościel to doskonały przykład zapewnia komfortowy sen, a jednocześnie oferuje obszerne miejsce do przechowywania, eliminując potrzebę dodatkowej komody czy szafy. Inne przykłady to pufy z otwieranym siedziskiem, które mogą służyć jako dodatkowe miejsce do siedzenia i schowek, czy stoliki nocne z wbudowanymi szufladami. Szukajcie rozwiązań, które łączą w sobie kilka funkcji, aby każdy mebel pracował na rzecz Waszej przestrzeni.
Jak uniknąć wrażenia "zagracenia" na małym metrażu?
Unikanie wrażenia zagracenia w małej sypialni to sztuka umiaru i świadomego wyboru. Przede wszystkim, stawiajcie na meble o lekkiej konstrukcji zamiast masywnych, ciężkich szaf, wybierzcie te z drzwiami przesuwnymi i lustrzanymi frontami. Łóżko na nóżkach zamiast zabudowanego sprawi, że podłoga będzie bardziej widoczna, co optycznie powiększy pokój. Maksymalnie wykorzystajcie światło dzienne nie zasłaniajcie okien ciężkimi, ciemnymi zasłonami. Postawcie na jasne, lekkie tkaniny. Ograniczcie liczbę bibelotów i dekoracji do minimum, wybierając tylko te, które naprawdę lubicie i które mają dla Was znaczenie. Każdy przedmiot powinien mieć swoje miejsce, aby łatwo było utrzymać porządek.
Najczęstsze błędy przy meblowaniu sypialni: ucz się na cudzych potknięciach
Podczas urządzania sypialni łatwo o błędy, które mogą zepsuć całą koncepcję i sprawić, że wnętrze będzie mniej funkcjonalne lub po prostu nieprzyjemne. Świadomość tych typowych potknięć to pierwszy krok do stworzenia idealnej przestrzeni do odpoczynku.
Błąd #1: Zbyt duże meble w małym pokoju
To jeden z najczęstszych błędów, który widuję. W małej sypialni, zwłaszcza w bloku, wstawienie zbyt dużego łóżka, obszernej szafy czy masywnej komody prowadzi do całkowitego zagracenia przestrzeni. Pokój staje się ciasny, trudno się w nim poruszać, a co najważniejsze trudno w nim oddychać. Zawsze mierzycie i planujcie z uwzględnieniem proporcji. Lepiej wybrać mniejsze, ale funkcjonalne meble, które pozwolą na swobodny dostęp i poczucie przestronności.
Błąd #2: Niewłaściwa kolorystyka i oświetlenie, które psują nastrój
Sypialnia to miejsce relaksu, a zbyt intensywne, pobudzające kolory na ścianach (np. jaskrawa czerwień czy mocny pomarańcz) mogą utrudniać wyciszenie i zasypianie. Podobnie jest z oświetleniem. Ograniczenie się do jednego, centralnego źródła światła, które daje płaskie i ostre światło, sprawia, że wnętrze jest niefunkcjonalne i pozbawione nastroju. Pamiętajcie, by wybierać stonowane barwy i planować wielopunktowe oświetlenie, które pozwoli na stworzenie różnych scen świetlnych.
Błąd #3: Ignorowanie ergonomii i funkcjonalności
Kupowanie mebli wyłącznie ze względu na wygląd, z pominięciem komfortu i funkcjonalności, to poważny błąd. Niewygodne łóżko, niewystarczająca ilość miejsca do przechowywania (co skutkuje bałaganem) czy ustawienie łóżka w rogu (utrudniające dostęp jednej z osób) to wszystko sprawia, że sypialnia staje się mniej praktyczna. Zawsze zadawajcie sobie pytanie: "Czy ten mebel jest wygodny i czy spełnia swoją funkcję?". Ergonomia to podstawa dobrego projektu.
Inspiracje i style: znajdź swój pomysł na sypialnię
Sypialnia to bardzo osobista przestrzeń, dlatego warto, aby odzwierciedlała Wasz styl i preferencje. Poszukiwanie inspiracji to ekscytujący etap, który pomoże Wam odkryć, jaki klimat najbardziej Wam odpowiada i w jakim otoczeniu będziecie czuć się najlepiej.
Spokój i natura: sypialnia w stylu skandynawskim i boho
Jeśli cenicie sobie spokój, naturalność i lekkość, style skandynawski i boho będą dla Was idealne. W sypialni skandynawskiej dominuje minimalizm, jasne kolory (biel, szarości, pastele) i naturalne materiały, takie jak jasne drewno, len i bawełna. Meble są proste, funkcjonalne, a dodatki ograniczają się do tych, które wprowadzają ciepło np. miękkie pledy, dywany z naturalnych włókien. Styl boho to z kolei kwintesencja swobody i bliskości z naturą. Charakteryzują go kolory ziemi (beże, brązy, szałwiowa i oliwkowa zieleń), liczne tekstylia (makramy, poduszki z frędzlami), rattanowe meble, juta oraz mnóstwo żywych roślin doniczkowych. Oba style tworzą bardzo przytulne i relaksujące wnętrza.
Nowoczesna elegancja: minimalizm, który nie jest nudny
Nowoczesny minimalizm w sypialni to połączenie prostoty formy z funkcjonalnością i elegancją. Tutaj liczy się jakość, a nie ilość. Dominują gładkie powierzchnie, stonowana kolorystyka (szarości, biele, czerń, granat) i geometryczne kształty. Aby uniknąć wrażenia nudy, warto postawić na ciekawe faktury (np. panele ścienne, lamele), nastrojowe oświetlenie LED, a także jeden lub dwa mocniejsze akcenty kolorystyczne w dodatkach. To styl dla tych, którzy cenią sobie porządek, przestronność i wyrafinowaną prostotę.Przeczytaj również: Kwiaty do sypialni: Lepszy sen i czyste powietrze? Sprawdź, które wybrać!
Ponadczasowa klasyka: jak urządzić przytulne i stylowe wnętrze?
Ponadczasowa klasyka to styl, który nigdy nie wychodzi z mody. W sypialni urządzonej w ten sposób znajdziecie elegancję, harmonię i przytulność. Charakteryzują ją wysokiej jakości materiały, takie jak lite drewno, szlachetne tkaniny (welur, jedwab), a także stonowana kolorystyka beże, kremy, delikatne szarości, błękity i zielenie. Klasyczne meble, często z rzeźbionymi detalami, wygodne łóżko z tapicerowanym zagłówkiem, eleganckie lampy i symetryczne układy to podstawa. Dodatki, takie jak miękkie dywany, ozdobne poduszki i zasłony, tworzą atmosferę luksusu i komfortu, sprawiając, że sypialnia staje się prawdziwą ostoją spokoju i dobrego smaku.
